Модерно и практично: мини студентско общежитие в Хонг Конг

Публикувано на 08/12/2015 от Светла Иванова | Последна редакция на 15/08/2016 | Видяно 4 380 пъти

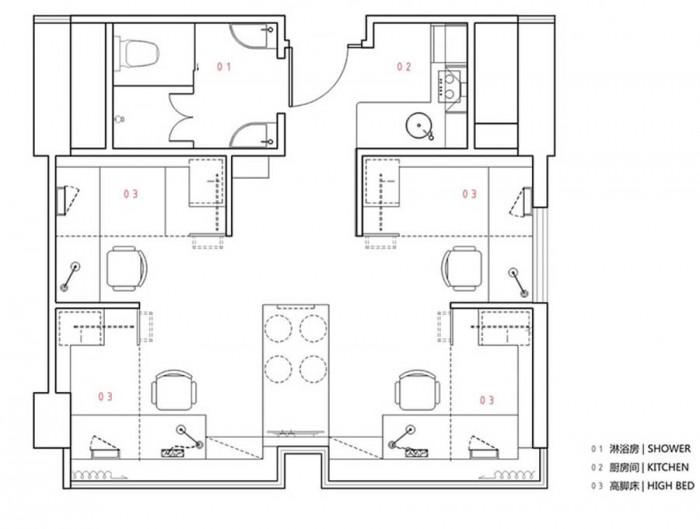
В гъсто населен град като Хонг Конг, разходите на младите хора за квартира и битови сметки са наистина тежко бреме. Проблемът, като във всеки друг мегаполис, е че хубавите апартаменти са с твърде висока цени, а по-евтините такива просто не са уютни. За да се справят с това предизвикателство, дизайнерите от студио LYCS са намерили достъпен начин да реновират 48 студентски общежития. Те са разположени в съществуващ хотел в Хонг Конг и имат за цел да осигурят максимален комфорт, достъпна цена и място за повече съквартиранти. А ако и вие имате нужда от свежи идеи за малкото жилище, то не се колебайте да се свържете с опитни интериорни дизайнери, които да ви помогнат в обзавеждането.


Високи легла за пестене на пространство

За да бъде оползотворен абсолютно всеки квадратен метър от помещението, леглата не са разположени на земята. Те са снабдени със стълбичка, малки завеси за повече уединение, вградени етажерки и контакти за зареждане на телефон, таблет или лаптоп. Благодарение на това иновативно интериорно решение, на площ от 27 квадратни метра могат да живеят съвсем спокойно 4 човека.

Вижте още: Уютен малък дом - новото лице на стар училищен автобус


Личен кът за всеки съквартирант

Бюрото определено влиза в графата на мебелите, които заемат много място. Но няма как едно общежитие за студенти да бъде пълноценно, ако то липсва. В този студентски апартамент, бюрата са практично разположени под високите легла. Те разполагат с достатъчно слънчева светлина, чекмеджета и етажерки, за да може всеки студент да подреди необходимите си вещи.


Споделена трапезария в центъра на стаята

Разбира се, освен от място за спане и учене, всеки човек има нужда от кът, където да вземе глътка свеж въздух, да хапне и да си поприказва с приятели. С тази цел е проектирана и голямата маса, която влиза в ролята на трапезария. Тя може да побере доста повече от 4 човека, което означава, че съвсем спокойно може да поканите гости.

Вижте още: Как да превърнем маломерното студио във функционално жилище


Отвореният план създава усещане за простор

Вече със сигурност се убедихте, че дори на 27 квадратни метра има място за всичко, стига то да е добре премислено. Разковничето за доброто разположение на това общежитие несъмнено е отвореният план, който създава усещане за простор. Освен всичко изброено дотук, помещението в Хонг Конг разполага с малка кухня и баня.

Ако и вие се чудите как да разгърнете потенциала на малкия апартамент, свържете се с професионалистите в тази област. Те ще ви дадат ценни съвети и ще превърнат маломерното жилище във функционално и уютно местенце. Направете безплатна заявка в MaistorPlus и до 24 часа ще получите конкурентни оферти с цени от различни изпълнители.



Бъди в крак с тенденциите в дома и интериора. Информирайте се първи и напълно безплатно чрез:

онлайн преди 2 часа
stroimaxbg
4.98 / 5 от 71 извършени проекта Покривни услуги, София
онлайн преди 1 ден
Асен Асенов
4.91 / 5 от 26 извършени проекта Боядисване и декорация, София
онлайн преди 17 часа
Кирчо Илиев
5.00 / 5 от 3 извършени проекта Покривни услуги, Шумен
онлайн преди 1 ден
"Ивикс Строй"
5.00 / 5 от 26 извършени проекта Сухо строителство, Велико Търново