Отвореният план създава усещане за простор

Последна редакция на 23/03/2026 от Светла Иванова
Източник | Видяно 1 536 пъти

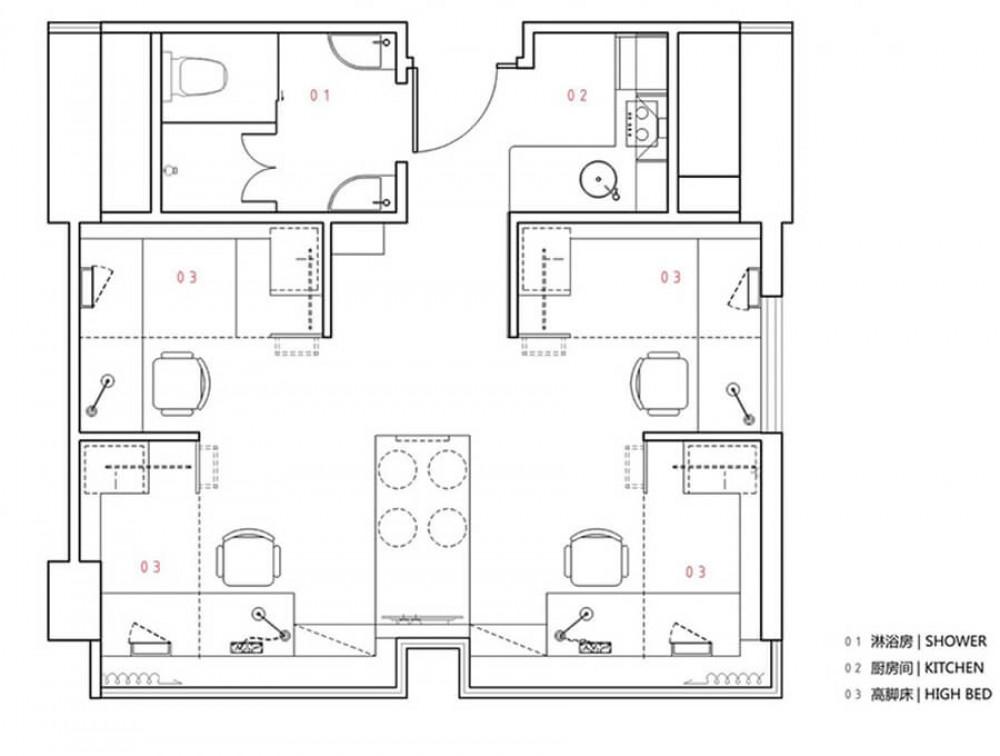
Вече със сигурност се убедихте, че дори на 27 квадратни метра има място за всичко, стига то да е добре премислено. Разковничето за доброто разположение на това общежитие несъмнено е отвореният план, който създава усещане за простор. Освен всичко изброено дотук, помещението в Хонг Конг разполага с малка кухня и баня.

Ако и вие се чудите как да разгърнете потенциала на малкия апартамент, свържете се с професионалистите в тази област. Те ще ви дадат ценни съвети и ще превърнат маломерното жилище във функционално и уютно местенце. Направете безплатна заявка в MaistorPlus и до 24 часа ще получите конкурентни оферти с цени от различни изпълнители.

Свързано:

Снимки и идеи за архитектура и дизайн Модерно и практично: мини студентско общежитие в Хонг Конг