Умело ремонтирана мансарда - открийте невероятни зони за отдих

Публикувано на 12/07/2015 от Павлина Георгиева | Последна редакция на 12/07/2016 | Видяно 6 185 пъти

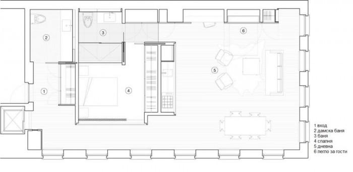
Като всеки ремонт, и този започва по предварително начертан план. Както се вижда, идеята тук е в жилищното пространство да бъдат включени антре, дневна, част от която е и легло за гости, спалня, дамска тоалетна, баня.

Вижте още: 13,5 кв.м. таван в София се превърна в луксозно ателие


Умело ремонтирана мансарда - открийте невероятни зони за отдих

Различните по темперамент хора имат съответсващи на нрава си изисквания за визията и атмосферата в дома си. Да вземем за пример млад студент по Медицина от Колумбийския университет, чието желание е да се прибира след лекции в дом, обединяващ в себе си зони за усамотение и открити пространства. С ремонтирането на мансардата му, заемаща площ от 83 кв.м., се заемат от LYNCH / EISINGER / DESIGN, а какъв е крайният резултат от усилията им ще разберем в настоящата статия. Ако вие също имате нужда от преобразяване на жилището си, открийте точния специалист бързо и лесно.


По-високи тавани

Основна стъпка от ремонта на мансардата е да бъдат премахнати междинните прегради, като по-този начин се отваря повече пространство нагоре към таваните. Така се открива гледка към северната и западната част на дома. Увеличената кубатура позволява дневната светлина да достига и до зоните за усамотение.


Какво се крие в дневната?

В дневната дизайнерите успяват да обединят кухня, трапезария, работен кът, дори и падащо легло. Избраният за мебелите бял цвят оптимално увеличава пространството, отразявайки светлината.


Падащо легло

Падащото легло е пръв приятел за всеки, стремящ се към оптимизиране на пространството в дома си. Отлично решение е и когато гостите решат да пренощуват. Когато не се използва според основното си предназначение и е прибрано към стената, то влиза в ролята на прожекционен екран.


Мигове на усамотение в спалнята

Спалнята е решена основно в сив цвят, той е използван включителоно и за каучуковата настилка в нея. За да се внесе щипка оптимизъм в обзавеждането на тази зона за усамотение, едната от вратите на гардероба е боядисана в оранжево.


Завесата е спусната

За пълно изолиране от външния свят и усамотение, е достатъчно да се дръпне плътната завеса. Чудесно решение по време на тежка сесия, а и за разпускане след нея.

Настъпил е момент за ремонт и на вашето жилище? Единственото, което е нужно да направите, е да се свържите с професионалисти близо до вас. Направете безплатна заявка, разгледайте офертите на изпълнителите, свързали се с вас, запознайте се с оставените за тях оценки и препоръки. Изберете с кого да работите и, след извършване на ремонтните дейности, оставете своя отзив в сайта.

Бъди в крак с тенденциите в дома и интериора. Информирайте се първи и напълно безплатно чрез:

онлайн преди 3 часа
stroimaxbg
4.98 / 5 от 71 извършени проекта Покривни услуги, София
онлайн преди 43 минути
Кирчо Илиев
5.00 / 5 от 3 извършени проекта Покривни услуги, Шумен
онлайн преди 2 минути
Асен Асенов
4.91 / 5 от 26 извършени проекта Боядисване и декорация, София
онлайн преди 1 ден
"Ивикс Строй"
5.00 / 5 от 26 извършени проекта Сухо строителство, Велико Търново