План за действие

Последна редакция на 23/03/2026 от Павлина Георгиева
Източник | Видяно 3 568 пъти

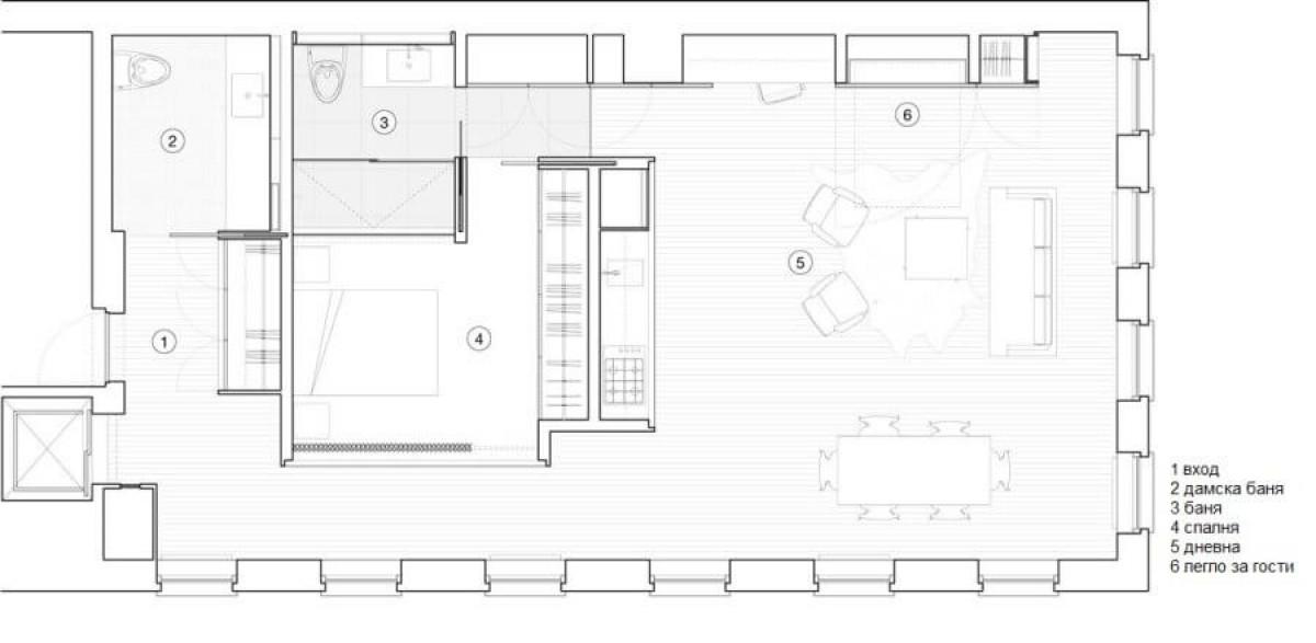
Като всеки ремонт, и този започва по предварително начертан план. Както се вижда, идеята тук е в жилищното пространство да бъдат включени антре, дневна, част от която е и легло за гости, спалня, дамска тоалетна, баня.

Вижте още: 13,5 кв.м. таван в София се превърна в луксозно ателие

Свързано:

Снимки и идеи за мансарда Умело ремонтирана мансарда - открийте невероятни зони за отдих