Началото на всеки проект - планът

Последна редакция на 23/03/2026 от Габриела Санчес

Проектант Archinavt

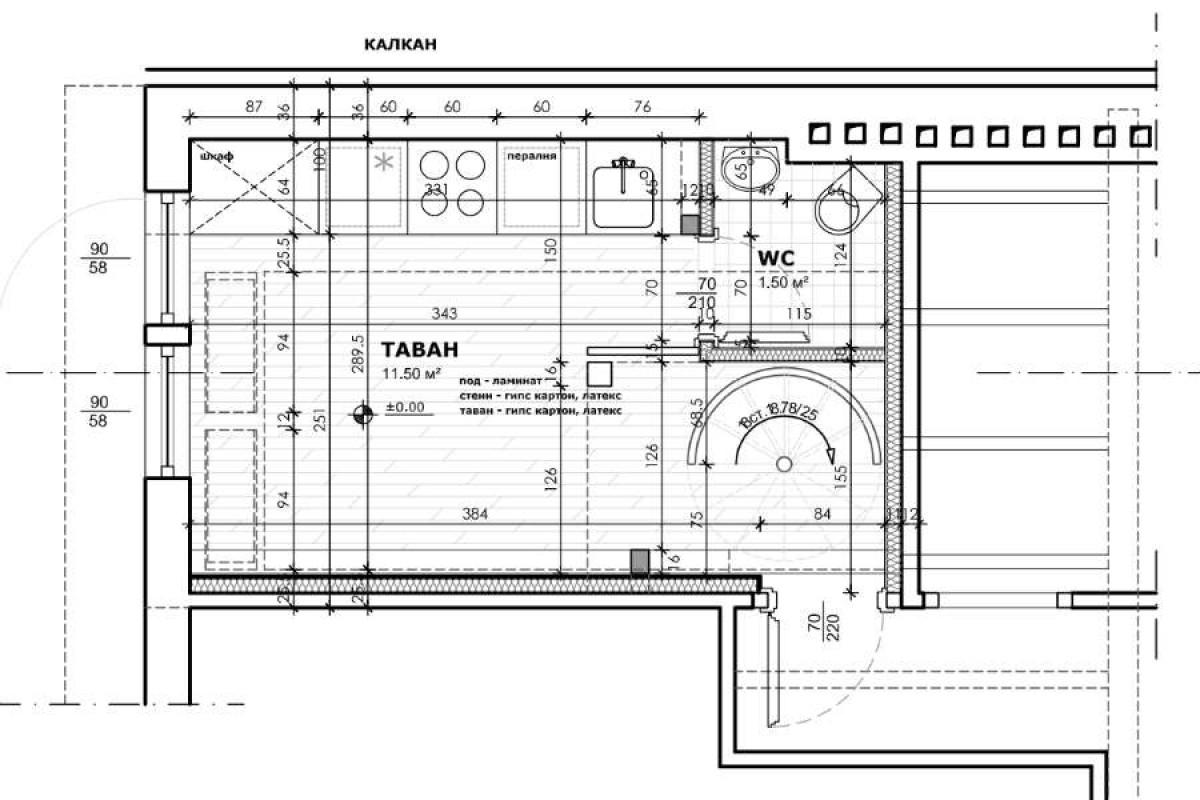
Още от самото начало Георги има визия за трансформацията на неговия таван, но се нуждае от професионални съвети и напътствия. Така, първи на сцената излизат младите архитекти Калина и Стефан от студио Archinavt. След успешно изчаканото административно време, дадено от Общината и останалите институции, архитектурният план е готов, а младите специалисти са успели да създадат не само приятен за окото, но и удобен за всекидневно ползване проект.

Свързано:

Снимки и идеи за архитектура и дизайн 13,5 кв.м таван в София се превърна в компактно ателие (снимки)