Началото на всеки проект - планът

Последна редакция на 23/03/2026 от Габриела Санчес

Проектант Archinavt

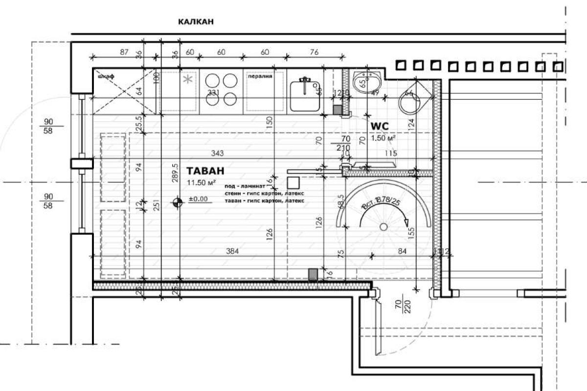
Още от самото начало Георги има визия за трансформацията на неговия таван, но се нуждае от професионални съвети и напътствия. Така, първи на сцената излизат младите архитекти Калина и Стефан от студио Archinavt. След успешно изчаканото административно време, дадено от Общината и останалите институции, архитектурният план е готов, а младите специалисти са успяли да създадат не само приятен за окото, но и удобен за всекидневно ползване проект.

Свързано:

Таван в София с 2 кв.м. кухня се превърна в модерно ателие (снимки)