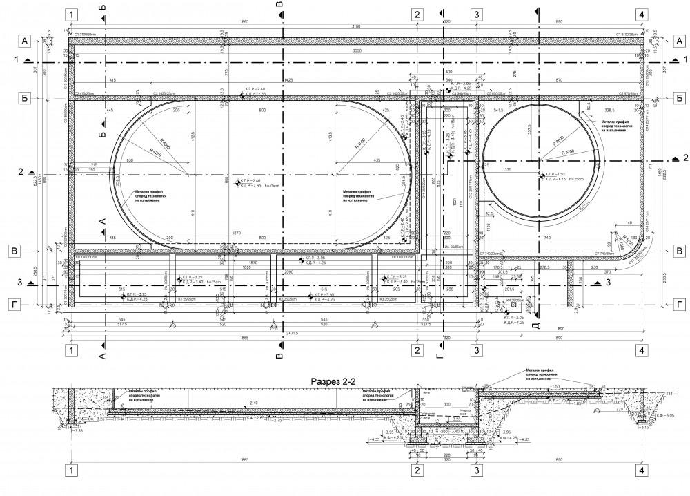
КОФРАЖЕН ПЛАН-ОСНОВИ

Последна редакция на 20/12/2025 от Зиген Груп

Свързано:

Зиген Груп